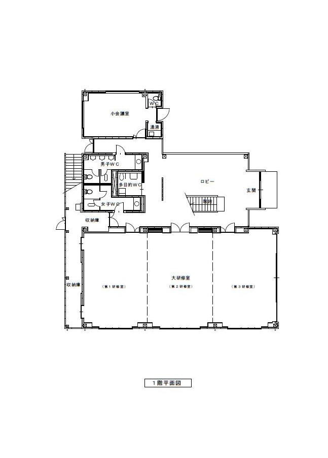
‘匤CŽº@151.04‡u
@@@
’†Œ¤CŽº@100.69‡u
@@
¬Œ¤CŽº@50.34‡u